Descrizione:
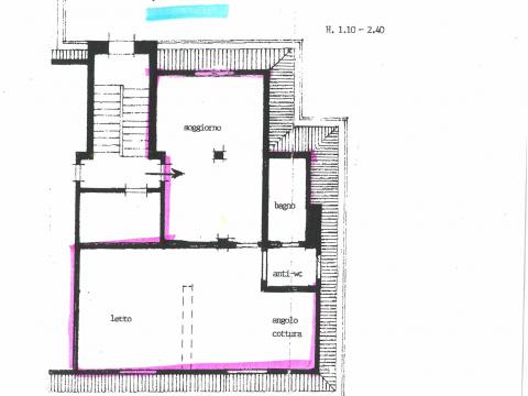
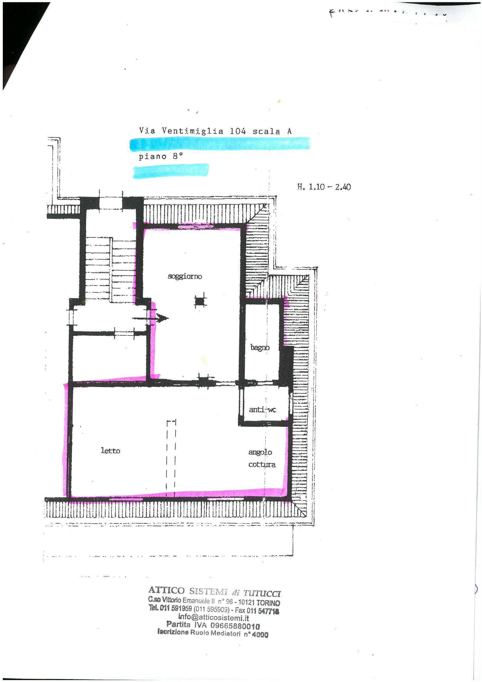
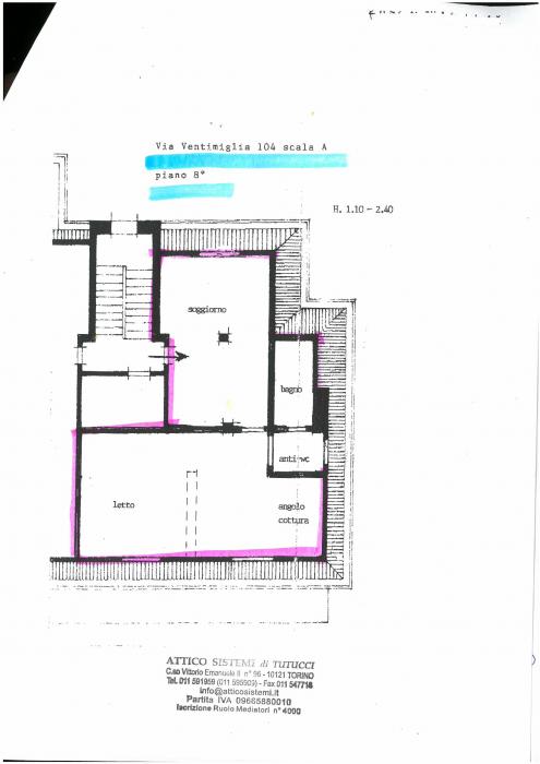
Nella zona sud di Torino, a 10 minuti a piedi dai noti centri commerciali Lingotto Gallery, Eataly, Lingotto Fiere, nelle immediate vicinanze della fermata della metropolitana su via Nizza, a un passo dalla bellissma area verde del parco del Valentino, su via Ventimiglia, all'altezza di via Millefonti, all'8° ed ultimo piano con ascensore, in un contesto signorile con portineria e giardino condominiale, si AFFITTA un appartamento mansardato e completamente arredato, composto da:
INGRESSO SU AMPIO SOGGIORNO CON ANGOLO COTTURA, CAMERA, BAGNO.
luminoso
riscaldamento e spese condominiali mensili € 200,00;
contratto legge 431/98 e la proprietà aderisce al regime fiscale della cedolare secca: senza spese aggiuntive per l'imposta di registro, per i bolli né aumenti ISTAT del canone per tutta la durata contrattuale
ATTICO SISTEMI. Dal secolo scorso di casa a Torino



